17209 E 44th Street Ct S, Independence, MO 64055
Back to Website: 17209E44thStreetCtS.IsForSale.com
Remarks
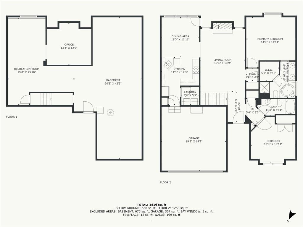
Beautifully maintained, single level living, ready for you! Nothing to do here but move in. Feel welcomed as soon as you walk in to the spacious, yet cozy, living room! Large, gorgeous kitchen is perfect for all your cooking and prep needs. So many cabinets and a pantry will ensure adequate space for everything. Beautiful primary bedroom with large en suite and walk in closet have been updated with modern features, making a perfect resting place. Generous second bedroom on the main level adjacent to the second full bath allows for another private retreat. The basement offers versatility with a non conforming bonus room as well as large L shaped family room that can be used in multiple capacities! There is also ample storage space in the unfinished portion of the basement. Outside the home, you will enjoy many amenities, including walking trails, club house, and pool. This neighborhood is tucked away, with a single entrance off the main road, making it feel private and secluded while still being very close to highways, restaurants, shopping and entertainment. It is also a part of the Blue Springs School District. Between the updates on the inside and the location surrounding, this home is perfect for you! Come see it today!General Information
Building Details
Amenities
- Fireplace











































